- Nouveau produit




keyboard_arrow_rightkeyboard_arrow_left
Le filtre à cartouche Emaux Galaxy ICF100 est un modèle compact et performant conçu pour les piscines résidentielles.
Avec un débit conseillé de 10 m³/h et une grande surface filtrante de 9,29 m², il assure une eau claire et brillante tout en réduisant l’entretien.
Le filtre à cartouche Emaux Galaxy ICF100 est conçu pour offrir une filtration fine et régulière aux piscines résidentielles. Grâce à son élément filtrant de 137 plis et sa surface utile de 9,29 m², il retient efficacement les particules fines et garantit une eau claire, limpide et saine tout au long de la saison.
Fabriqué en polymère renforcé résistant aux UV, le corps du filtre Galaxy ICF100 assure une longévité optimale, même en extérieur. Il supporte une pression maximale de 50 PSI et résiste jusqu’à 40°C, ce qui en fait un équipement fiable pour tous types de bassins privés.
Contrairement à un filtre à sable, le Galaxy ICF100 ne nécessite aucun contre-lavage. Un simple rinçage de la cartouche suffit pour restaurer son efficacité. Cette technologie permet une économie d’eau considérable et une réduction de l’usage de produits chimiques, rendant la filtration plus économique et plus écologique.
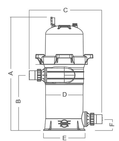
Grâce à sa bague de verrouillage à dégagement rapide, l’accès à la cartouche est immédiat. Le manomètre intégré indique le moment idéal pour nettoyer l’élément. Son design compact (825 mm de hauteur) permet une installation dans les locaux techniques les plus exigus.
Avec un débit de 10 m³/h, des matériaux robustes et une grande facilité d’entretien, le Galaxy ICF100 est une solution fiable pour tous les propriétaires souhaitant une filtration piscine performante, durable et économique en eau.
Débit conseillé : 10 m³/h
Surface filtrante : 9,29 m²
Cartouche 1 élément – 137 plis
Matériaux résistants aux UV
Pas de contre-lavage → économie d’eau
Manomètre intelligent
Ouverture rapide par bague à loquet
Connexions 50/63 mm
Compact (hauteur 825 mm)

| Modèle | Code | Débit (m³/h) | Surface (m²) | A (mm) | B (mm) | C (mm) | D (mm) | E (mm) | F (mm) |
| ICF100 | 9140401 | 10 | 9.29 | 825 | 444,5 | 588 | 304 | 335 | 91 |
| ICF150 | 9140402 | 14 | 13.94 | 910 | 444,5 | 588 | 304 | 335 | 91 |